海都商业地产
房源详情

上海长宁区虹桥商务大厦写字楼租售,周边商业设施配套齐全,大厦设备进口,交通便利

位置 : 上海市
区域 : 长宁区
楼盘名称 : 虹桥商务大厦
租售类型 : 出售
商业性质 : 写字楼
室内装修 : 简装
楼盘地址 : 虹桥路2272号
实际面积 : 515㎡
租售价格 : 联系客服
 
租售类型 :
 
房源面积 :
159-2176-7138  房源咨询
房源详情

一、楼盘简介

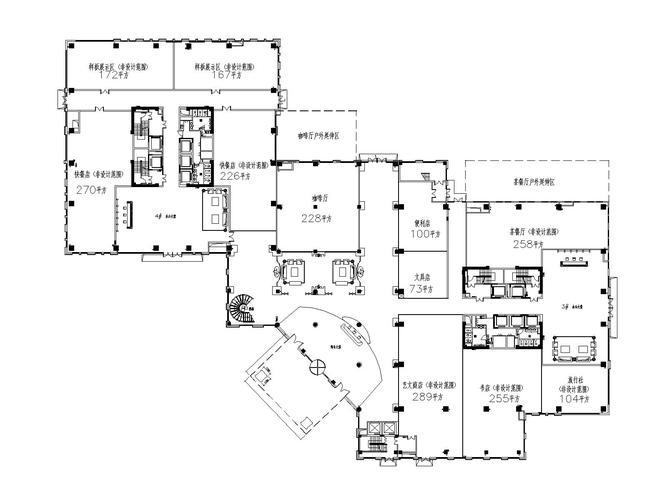
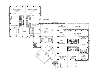
虹桥商务大厦设置了综合布线系统,电脑接地线,卫星电视及光纤电缆;大厦内消防自动报警系统及喷淋系统采用美国进口设备;大厦主要出入口、电梯、公共走道设有监控系统,保安24小时值班。2002年虹桥商务大厦被中华人民共和国建设部评为全国物业管理示范大厦。虹桥商务大厦每层面积3600平方米左右,可自由分隔成20平方米以上至3600平方米的办公用房。


二、房源信息·




位置

虹桥路2272号

区域

虹桥

租售类型

出租

商业性质

写字楼

房源面积

515㎡

日租金

0.4元/㎡/日

装修

简装

楼盘名称

虹桥商务大厦

层数

7层

层高

2.5m

4电梯

7部

车位

30个

物业费

25元/㎡/月

楼盘地址

虹桥路2272号

实际面积

515㎡

租售价格

联系客服

·

三、配套设施

【购物】上海虹桥花卉市场,盒马鲜生(虹桥店),农工商超市(虹桥路店),程家桥菜场,上海虹桥花卉市场-A区,国际花艺时代广场(虹桥古玩城),全家便利店(程家桥路店)

【医院】秀龙口腔,驾驶员拍照体检哈密路站,武警上海总队医院-门诊

【学校】哈密路小学,闵行区龙柏第一小学,HiBaby Club,光的空间,协和双语学校(虹桥校区),上海市马戏学校,哈密路幼儿园,新虹桥中学


四、户型图


五、楼盘信息

202359竣工时间

1995年


所属商圈

虹桥路


地理位置

虹桥路2272号

开发商

竣工时间

面积

上海虹蛏沾B有限公司

暂无信息

515㎡

绿化率

轨交

物业名称

暂无信息

10号线

上海紫泰物业管理有限公司

空调

网络

入驻企业

中央空调

电信、联通、移动

暂无信息

·


虹桥商务大厦
上海市长宁区虹桥路2272号(龙溪路地铁站4号口步行450米)
©2024 Tencent - GS粤(2023)1171号地图数据


服务顾问带看

服务顾问带看

近30天带看17次,总带看637次

租赁服务顾问·罗宇
成交396单,带看2461次,维护着46套房源
曾带领团队获得海都商业2021年年度“最佳门店”,个人荣获“最佳合伙人”等荣誉
2011年从事上海商业地产租售业务,海都商业买卖部总监
成交168单,带看1189次,维护着74套房源
买卖服务顾问·游祺
2017年获得“房地产经纪专业人员职业资格”证书
成交73单,带看856次,维护着23套房源
大宗交易服务顾问·邱文玲
房源需求提交

房源需求提交

一键提交需求,帮您匹配最合适的方案

您的需求
详情描述
姓名
*
手机号
*
立即提交
商务接待
企微接待客服