一、楼盘简介
环智国际大厦地处天目西路与恒丰路交界处,不夜城内的恒丰路西侧、天目西路上海站大酒店南侧,属于极具潜力的恒丰路商务区,毗邻闸北地标写字楼洲际中心,由港资开发商恒基兆业集团倾力打造。整个项目将于2012年3月正式竣工。环智国际大厦周边轨道交通1号线、3号线、4号线,还有在建中的12号线贯穿左右。
二、房源信息·
位置 |
恒丰路/裕通路 | 区域 |
上海火车站 |
租售类型 | 出租出售 | 商业性质 | 写字楼 |
房源面积 |
1534㎡ | 日租金 |
4.3-5.6元/㎡/日 |
装修 | 简装 | 楼盘名称 |
环智国际广场 |
层数 |
29层 | 层高 |
2.5m |
电梯 |
10部 | 车位 |
200个 |
物业费 |
28元/㎡/月 | 楼盘地址 |
恒丰路/裕通路 |
实际面积 | 40000㎡ | 租售价格 |
4.3-5.6元/㎡/日 |
·
三、配套设施
【生活】农行不夜城支行、建行闸北支行、光大银行闸北支行、兴业银行闸北支行、招商银行(新客站支行)、工行不夜城支行、交行闸北支行、上海银行(闸北支行)、中行恒丰路支行、上海银行闸北支行营业部
【购物】太平洋百货、名品商厦、佛罗伦(天目西路店)、雅诗兰黛(站太店)、喜士多(天目西路店)、联华快客(共和路店)、韦斯柯特(天目西路店)、屈臣氏、喜士多(梅园路店)、熊城超市、尚吉超市、全家便利店(天目西路店)
【轨交】距1号线、3号线、4号线上海火车站站318米
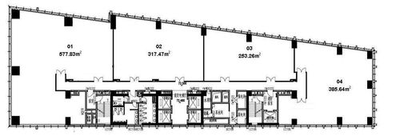
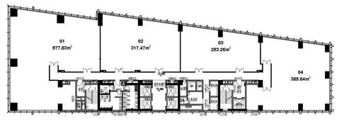
三、户型图

五、楼盘信息
竣工时间
2012年
所属商圈
上海火车站
地理位置
恒丰路/裕通路
开发商 | 竣工时间 | 面积 |
香港恒基兆业地产有限公司 |
2012年
|
40000㎡ |
绿化率 | 轨交 | 物业名称 |
暂无信息 |
1、3、4号线 |
第一太平戴维斯
|
空调 | 网络 | 入驻企业 |
中央空调 | 电信、联通、移动 |
暂无信息 |
·
创智国际
上海市杨浦区政立路477号同和大厦B座502
©2024 Tencent - GS粤(2023)1171号地图数据