一、楼盘简介
东展商业大厦位于上海市中心静安区,毗邻繁华的中华第一街——南京西路、地铁二号干线及成都路高架枢纽。交通四通八达,车程3分钟可到达上海火车站、锦沧文华、香格里拉、希尔顿等五星级酒店,20分钟可到外滩及上海虹桥国际机场,是上海市中心区交通极为便捷的良好地区。
二、房源信息·
位置 |
北京西路669号 | 区域 |
北京西路 |
租售类型 | 出租出售 | 商业性质 | 写字楼 |
房源面积 |
暂无信息 | 日租金 |
4.5元/㎡/日 |
装修 | 简装 | 楼盘名称 | 东展商业大厦 |
层数 | 暂无信息
| 层高 |
暂无信息 |
电梯 |
暂无信息 | 车位 |
暂无信息 |
物业费 |
暂无信息 | 楼盘地址 | 北京西路669号 |
实际面积 |
暂无信息 | 租售价格 |
4.5元/㎡/日 |
·
三、配套设施
【介绍】
东展商业大厦内写字楼,每层面积由680至800平方米,楼面设计灵活,墙身涂上等乳胶漆及装配空调风口、英泥沙批荡地台,大厦将有充足电话线,其中中继线、国际直拨电话线及传真电话线等。东展商业大厦写字楼可申请中继线通过程控电话机(PABX)接驳内部电话分机;商户可申请接驳国内直拨电话线、国际直拨电话线及传真电话线东展商业大厦属于静安区写字楼,东展商业大厦轨道交通地铁2号沿线,属于北京东路商圈写字楼, 上海东展大厦写字楼内写字楼,每层面积由680至800平方米,楼面设计灵活,墙身涂上等乳胶漆及装配空调风口、东展大厦将有充足电话线,其中包括中继线、国际直拨电话线及传真电话线等,写字楼可申请中继线通过程控电话机(PABX)接驳内部电话分机;客户可申请接驳国内直拨电话线、国际直拨电话线及传真电话线。无论企业规模大小,东展大厦 均属理想办公地点。
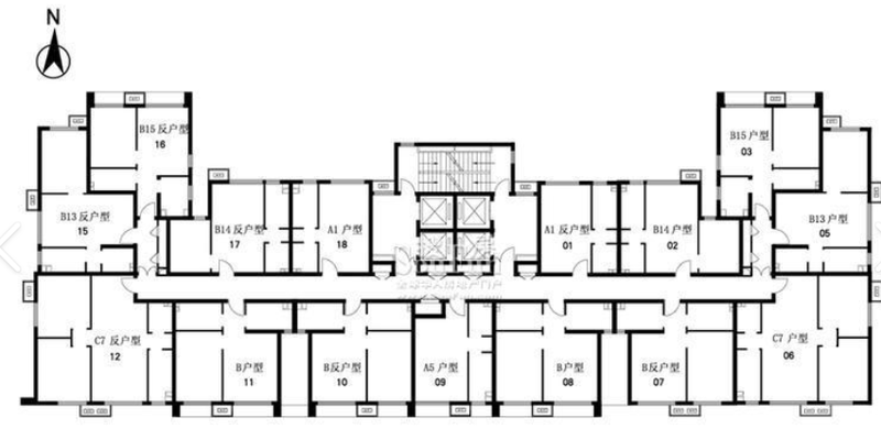
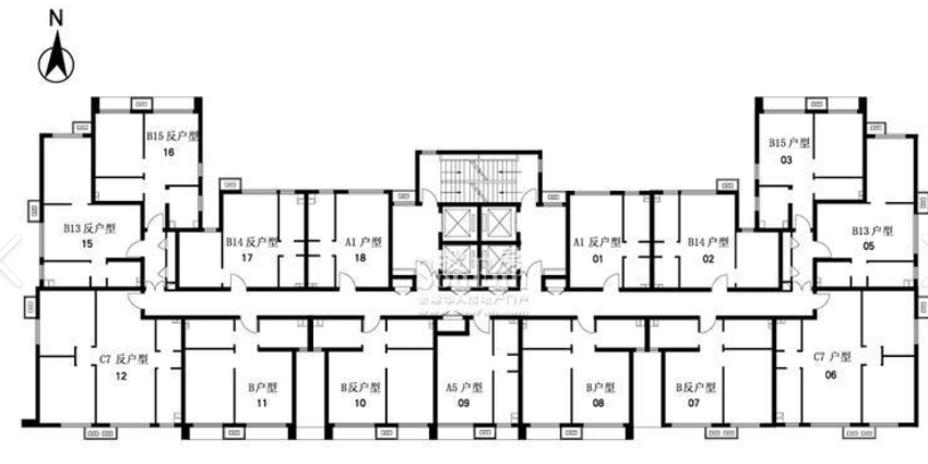
四、户型图

五、楼盘信息
竣工时间
暂无信息
所属商圈
北京西路
地理位置
北京西路669号
开发商 | 竣工时间 | 面积 |
暂无信息 |
暂无信息
|
暂无信息 |
绿化率 | 轨交 | 物业名称 |
暂无信息 | 2号线 |
上海英伦物业服务有限公司
|
空调 | 网络 | 入驻企业 |
中央空调 |
中国电信;中国网通;光纤接入 |
上海信义房屋中介咨询有限公司
|
·
东展商业大厦
上海市静安区北京西路669号(南京西路地铁站11号口步行270米)
©2024 Tencent - GS粤(2023)1171号地图数据