一、楼盘简介
飞乐大厦位于上海市静安区永和路390号。飞乐大厦坐落于上海静安重点建设功能较全的社区级国际商业中心和南北高架、中环高架以及地铁1号线近在咫尺的黄金地段,距市中心人民广场约7公里,1号线和多条公交线路便捷畅达。
二、房源信息·
位置 |
永和路390号 | 区域 |
永和路 |
租售类型 | 出租出售 | 商业性质 | 写字楼 |
房源面积 |
1200㎡ | 日租金 |
2元/㎡/日 |
装修 | 简装 | 楼盘名称 | 飞乐大厦 |
层数 |
10层 | 层高 |
2.7米 |
电梯 |
3部 | 车位 |
60个 |
物业费 | 暂无信息 | 楼盘地址 | 永和路390号 |
实际面积 |
1200㎡ | 租售价格 |
2元/㎡/日 |
·
三、配套设施
顺着静安区办公、商贸区域的进一步北移,飞乐企业大厦的建成必定成为都市型商务办公的代表之作,更赋予创业者掌握未来发展的时机和空间。飞乐企业大厦由地上十层,地下一层组成。整个项目的建筑形态为凹型框架结构,有利于建筑的拚接和整和,其外观伟岸经典,更显露时代气息,并以生动自由而做出个性。
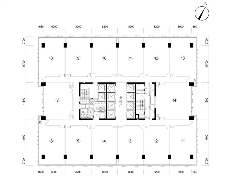
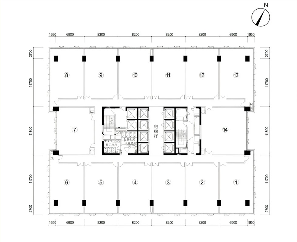
四、户型图

五、楼盘信息
竣工时间
2006年10月
所属商圈
永和路
地理位置
永和路390号
开发商 | 竣工时间 | 面积 |
上海飞乐股份有限公司 |
2006年10月
|
暂无信息 |
绿化率 | 轨交 | 物业名称 |
暂无信息 | 1号线 |
上海飞乐股份有限公司
|
空调 | 网络 | 入驻企业 |
中央空调 | 电信、联通、移动 |
暂无信息 |
·
©2024 Tencent - GS粤(2023)1171号地图数据