一、楼盘简介
盛大研发中心位于张江高科技园区的主要发展轴线上,占地面积50737平方米,总建筑面积51438平方米。依托张江高科技园区在政治、文化、科技的影响力,园区将打造成为具有驻留依托,吸引人才的“全球科研企业总部基地”。与此相匹配,园区设置了多层科研办公楼、花园式科研办公楼、总部科研楼等不同的研发物业类型,单元面积从100平米到2500平方米不等,形成了多类型的研发集群,可以满足不同类型企业的发展需求。盛大全球研发中心办公楼建筑气派,ArtDeco的建筑风格,进口石材欧式墙体的外立面,凯旋门式入口设计,体现高大上的楼宇品质,高端奢华。交通便捷,四通八达。园区车位充足,配比合理,停车无忧。配套齐全,私享高端会所。
二、房源信息·
位置 |
张衡路666号 | 区域 | 陆家嘴金融贸易区 |
租售类型 | 出租出售 | 商业性质 | 写字楼 |
房源面积 | 51438㎡ | 日租金 | 4元/㎡/天 |
装修 | 精装修 | 楼盘名称 | 盛大全球研发中心 |
层数 | 10层 | 层高 | 3.5m |
电梯 |
客梯4部,货梯1部 | 车位 | 80个 |
物业费 | 21元/㎡/月 | 楼盘地址 | 张衡路666号 |
实际面积 | 1748㎡ | 租售价格 | 4元/㎡/天 |
·
三、配套设施
【学校】竹园中学、洋泾中学校、胡姬港湾幼儿园、进才中学
【购物】世纪联华大商场、96广场、华润时代广场、第一八佰伴
【医院】上海东方医院、上海长航医院、上海市人民医院
【生活】建设银行、交通银行、中国银行、农业银行
【轨交】4,6号线
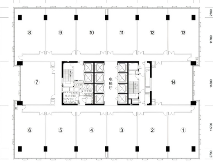
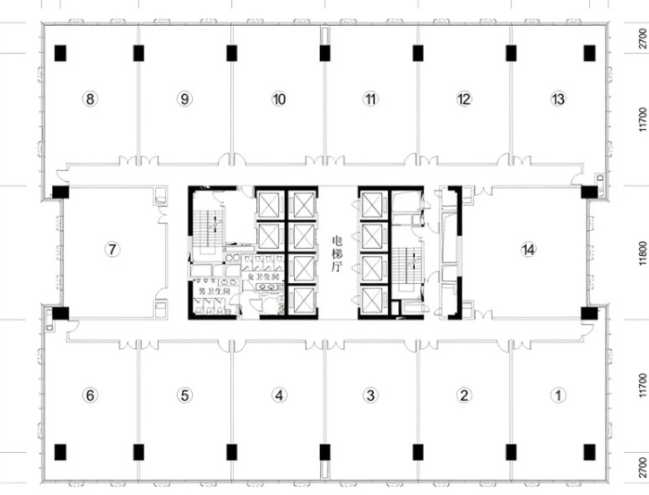
四、户型图

五、楼盘信息
竣工时间
2020年6月
所属商圈
陆家嘴金融贸易区
地理位置
张衡路666号
开发商 | 竣工时间 | 面积 |
上海盛大天地(中国)有限公司 |
2020年6月 |
51438m² |
绿化率 | 轨交 | 物业名称 |
30% | 4、6号线 |
东湖物业管理有限公司
|
空调 | 网络 | 入驻企业 |
| 中央空调 | 电信、联通、移动 | 暂无信息 |
·
盛大全球研发中心
上海市浦东新区张衡路666弄1~43号
©2024 Tencent - GS粤(2023)1171号地图数据