一、楼盘简介
由嘉里集团旗下的管理队伍提供专业的物业管理。其管理经验及良好的信誉,在国际公寓,上海商贸大厦和嘉里不夜城等项目中已得到充分体现。 嘉里中心是中外合资项目,由嘉里建设有限公司及香格里拉亚洲有限公司牵头发展。嘉里建设公司为香港上市公司,旗下重要商业及住宅发展项目遍及香港和中国;而香格里拉是亚洲酒店发展及管理的翘楚。两间公司均为跨国企业郭氏集团的成员。
二、房源信息
位置 |
南京西路1515号 | 区域 |
静安寺 |
租售类型 | 出租出售 | 商业性质 | 写字楼 |
房源面积 |
1462㎡ | 日租金 |
11.5元/㎡/日
|
装修 | 简装 | 楼盘名称 |
旺旺大厦 |
层数 |
33层 | 层高 |
2.8m |
电梯 |
客梯10部、货梯2部 | 车位 |
地上200个,地下700个 |
物业费 |
33元/㎡/月 | 楼盘地址 |
南京西路1515号 |
实际面积 | 34478㎡
| 租售价格 |
11.5元/㎡/日 |
·
三、配套设施
【购物】VERTU久百城市广场、久光百货、恒隆广场、TEFAL、金鹰国际购物中心
【生活】大华银行静安支行、汇丰银行上海商城支行、上海银行南西支行、星展银行南京西路支行
【餐饮】饮食男女、Manhattan、东申食府、花筐、Indian Vintage、美浓屋日式拉面(南京西路店)、中欣食堂
【轨交】地铁2号线、7号线、14号线
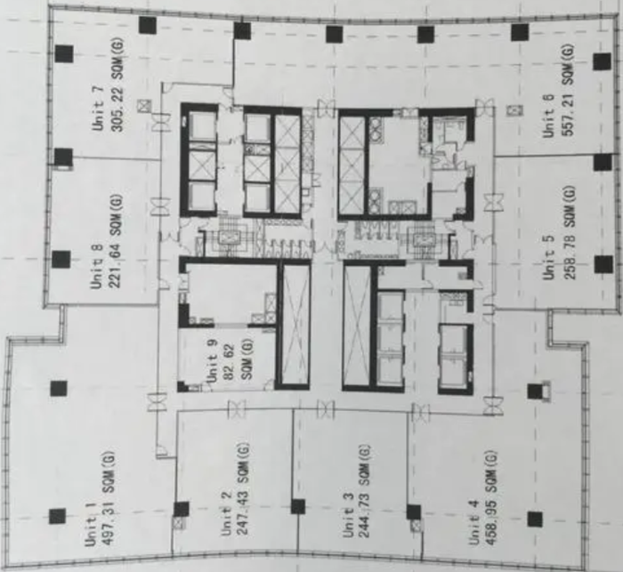
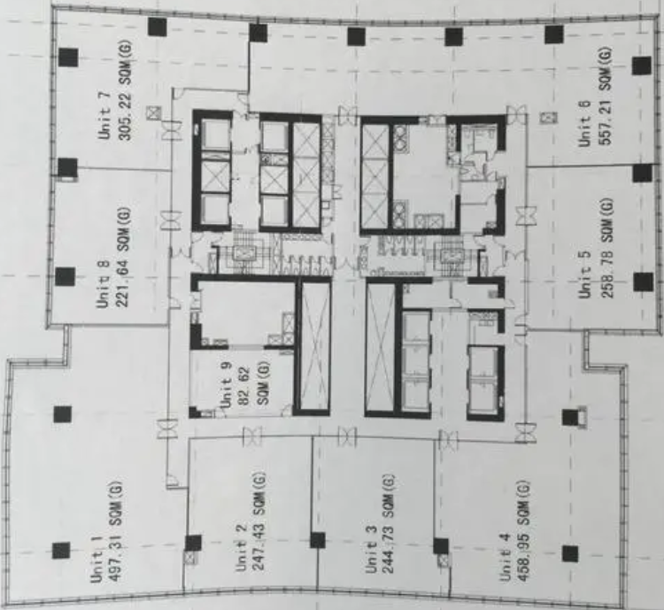
四、户型图

五、楼盘信息
竣工时间
1998年
所属商圈
静安寺
地理位置
南京西路1515号
开发商 | 竣工时间 | 面积 |
嘉里建设有限公司 |
1998年 |
34478㎡ |
绿化率 | 轨交 | 物业名称 |
暂无信息 |
2,7,14号线 |
嘉里集团
|
空调 | 网络 | 入驻企业 |
中央空调 | 电信,联通,移动 |
上海科教留学 |
·
上海嘉里中心2期
上海市静安区南京西路1515号(静安寺地铁站6号口步行300米)
©2024 Tencent - GS粤(2023)1171号地图数据