一、楼盘简介
静安新时代大厦设有国际电话线路,智能化综合布线系统,进口电梯、消防、保安系统等。物业管理到位,公共部位整洁干净,给租户提供了方便舒适的办公环境。大厦紧邻吴江路休闲街,周边汇集各色餐饮和特色商店。
二、房源信息
位置 |
南京西路881号 | 区域 |
南京西路 |
租售类型 | 出租出售 | 商业性质 | 写字楼 |
房源面积 |
724㎡ | 日租金 |
5.2元/㎡/日 |
装修 | 简装 | 楼盘名称 |
静安新时代大厦 |
层数 |
20层 | 层高 |
3.6m |
电梯 | 8部 | 车位 |
125个 |
物业费 |
32元/㎡/月 | 楼盘地址 | 南京西路881号 |
实际面积 |
18071㎡
| 租售价格 |
5.2元/㎡/日 |
·
三、配套设施
【购物】1-3层为高品味商业中心
【娱乐】4-6层为高架会所,内设KTV包房、桑拿、酒吧等高档娱乐设施
【轨交】距2号线南京西路站50米; 距7号线静安寺站1000米; 距1号线人民广场站1000米
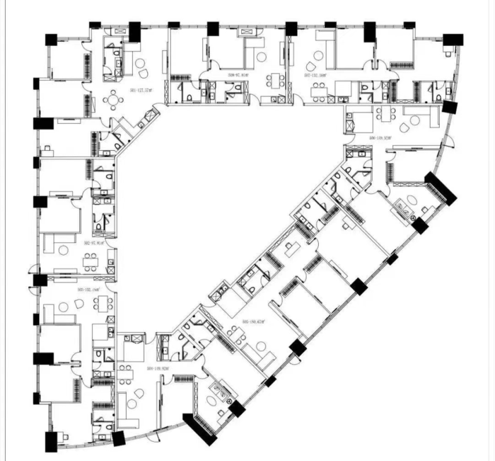
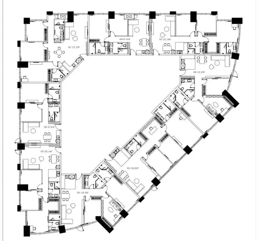
四、户型图

五、楼盘信息
竣工时间
暂无信息
所属商圈
南京西路
地理位置
南京西路881号
开发商 | 竣工时间 | 面积 |
上海静安新时代广场有限公司
|
暂无信息 |
18071㎡ |
绿化率 | 轨交 | 物业名称 |
暂无信息 |
1.2.7号线 |
人民企业集团物业管理有限公 |
空调 | 网络 | 入驻企业 |
中央空调 | 电信,联通,移动 |
暂无信息 |
·
©2024 Tencent - GS粤(2023)1171号地图数据