一、楼盘简介
上海信息大厦设计新颖、风格独特的这座大楼,在国内超高层建筑中首次采用了国际上先进的劲性钢骨混凝土筒体和巨型钢结构行架技术,有高大无柱开放型大堂空间。大堂内的球体博览区、外墙面富有节奏感的铝板造型和半镜面玻璃幕墙,与大楼顶部的整流板、通信铁塔及大堂内悬浮的球体等构成“宇宙空间站”的造型。 国内一流的这座信息大楼有先进的通信、信息、智能化设施,实现无线通信的全覆盖,移动电话和无线寻呼在楼内无通信盲点;大楼还配备先进的光缆以及SDH同步数字系列传输系统、ATM宽带交换系统等。
二、房源信息·
位置 |
民生路1403号 | 区域 | 陆家嘴金融贸易区 |
租售类型 | 出租出售 | 商业性质 | 写字楼 |
房源面积 | 42000㎡ | 日租金 | 4.5-6.4元/㎡/天 |
装修 | 精装修 | 楼盘名称 | 信息大厦 |
层数 | 25层 | 层高 | 2.7m |
电梯 |
客梯7部,货梯1部 | 车位 | 300个 |
物业费 | 20元/㎡/月 | 楼盘地址 | 民生路1403号 |
实际面积 | 1650㎡ | 租售价格 | 4.5-6.4元/㎡/天 |
·三、配套设施
【学校】竹园中学、洋泾中学校、胡姬港湾幼儿园、进才中学
【购物】世纪联华大商场、96广场、华润时代广场、第一八佰伴
【医院】上海东方医院、上海长航医院、上海市人民医院
【生活】建设银行、交通银行、中国银行、农业银行
【轨交】2,4,6号线
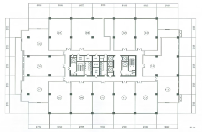
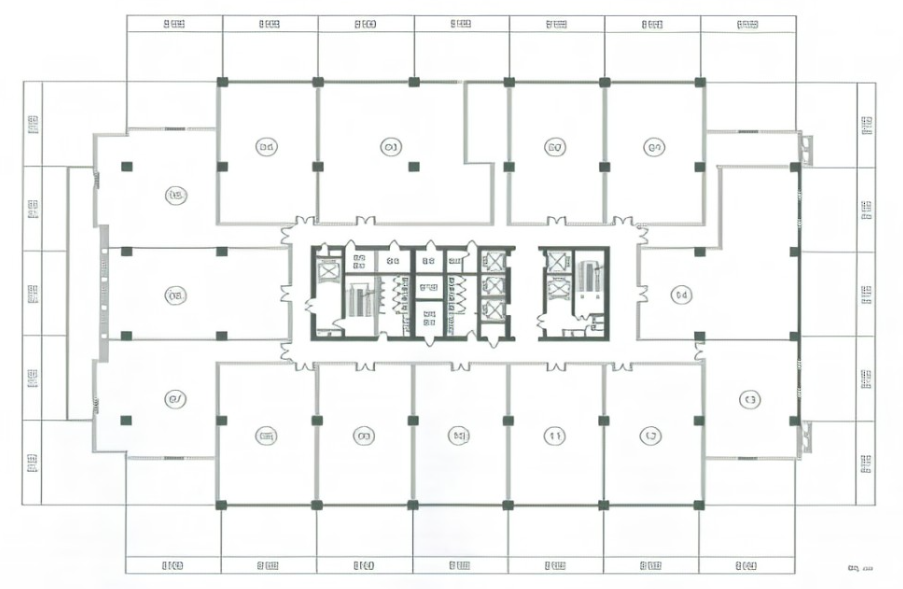
四、户型图

五、楼盘信息
竣工时间
2001年7月
所属商圈
陆家嘴金融贸易区
地理位置
民生路1403号
开发商 | 竣工时间 | 面积 |
上海电信公司信息世界分公司 |
2001年7月 |
42000m² |
绿化率 | 轨交 | 物业名称 |
30% | 4、6号线 |
仲量联行
|
空调 | 网络 | 入驻企业 |
| 中央空调 | 电信、联通、移动 | 暂无信息 |
·
©2024 Tencent - GS粤(2023)1171号地图数据