一、楼盘简介
巨洋大厦各个办公室不论是出租还是出售,空调运行费用计费明确。物业不需配置专门的空调维护人员,人力成本下降。上海巨洋大厦每层走廊中的高档型室内机通过网络协议接入物业总控系统中,由工作人员直接在物业办公室中操作即可,方便可靠。巨洋大厦噪声处理为保证办公环境的质量,对室内机进行了特别的防噪处理,在送风管道的三通迎风面和回风静压箱中贴附了PEF板,将噪声进一步降低。
巨洋大厦配置TEMPSTAR单元式中央空调系统,每个办公室的空调系统均为独立式,且进行防噪处理。楼内360度四面美景尽收眼底,南向绿荫洋房成就窗前画卷,大千世界一览无余。
二、房源信息·
位置 | 浦东大道 | 区域 | 浦东大道 |
租售类型 | 出租 | 商业性质 | 写字楼 |
房源面积 | 1200平方米 | 日租金 | 5.2
|
装修 | 精装修 | 楼盘名称 | 巨洋大厦 |
层数 | 25
| 层高 | 2.7
|
电梯 | 4 | 车位 | 暂无信息 |
物业费 | 20 | 楼盘地址 | 浦东大道 |
实际面积 | 1200㎡
| 租售价格 | 5.2 |
·三、配套设施
【购物】晨星电玩(民生路店)、百家实惠水果大卖场梅园店、上海炎尚烟酒食品商场、上海浦东景园商场有限公司百货商店、上海浦东综合物资商场、晨星电玩(浦东大道店)、鑫隆土特产商场、浦建贸易商行、京东商城(张杨路自提点)、非常手机(八佰伴店)
【生活】锦园茗茶、伍缘NO.0305、可的便利海运店、全家浦东大道店、全家便利店(浦东大道店)、罗森五牛城店、可的(海运二店)、联华快客(源深店)、文森超市、开波超市
【餐饮】圣乐大酒店(桃林路店)、明记小厨、真锅咖啡厅(浦东大道店)、成记龙虾王、海云宾馆餐厅、西北郎烧烤(民生路店)、第五街(海事大学店)、重庆四季鱼庄、沙尘暴西域餐厅、育华餐厅
【娱乐】隆德丰国际大酒店、中信五牛城酒店公寓、圣乐大酒店(桃林路店)、海云宾馆、上海中信五牛城酒店式公寓、育华餐厅、中信五牛城、海云宾馆圣乐餐厅、恒利美(上海)餐饮管理有限公司、上海柠檬公寓
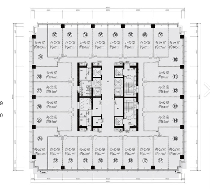
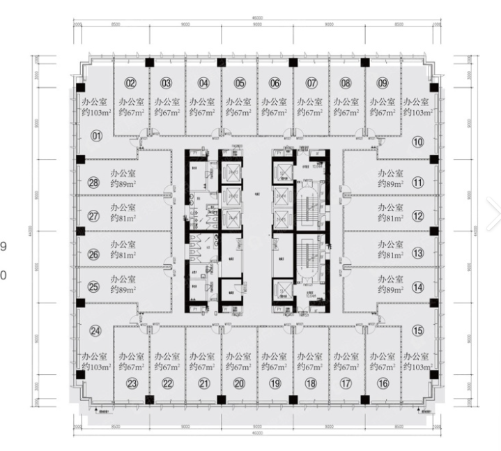
四、户型图

五、楼盘信息
竣工时间
2006.3.23
所属商圈
浦东大道
地理位置
浦东大道
开发商 | 竣工时间 | 面积 |
暂无信息 |
2006.3.23 |
30000㎡ |
绿化率 | 轨交 | 物业名称 |
暂无信息 | 6号线 |
一太平戴维斯 |
空调 | 网络 | 入驻企业 |
中央空调 | 中国电信,中国网通,光纤接入 | 暂无信息 |
·
巨洋大厦
上海市浦东新区浦东大道1200号(源深路地铁站3A口步行270米)
©2024 Tencent - GS粤(2023)1171号地图数据