海都商业地产
房源详情

上海市松江区中泰广场独栋出售,九亭板块丨毗邻大虹桥丨稀缺商业独栋出售丨企业总部不二之选

位置 : 上海市
区域 : 松江区
楼盘名称 : 中泰广场
租售类型 : 出售
商业性质 : 大宗独栋
室内装修 : 毛坯
楼盘地址 : 九亭板块
实际面积 : 700~2200㎡
租售价格 : 4.73-5.15w/m²
 
租售类型 :
 
房源面积 :
159-2176-7138  房源咨询
房源详情

项目基本信息


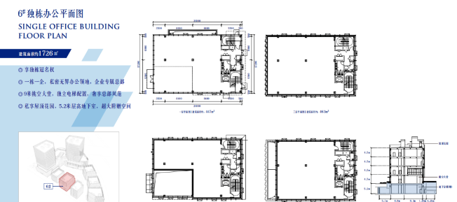
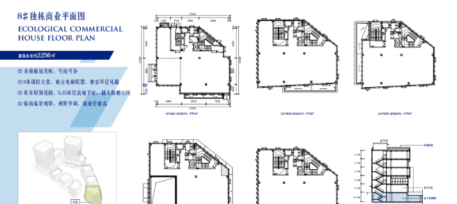
【面积】788m²丨1726m²丨1360m²丨2256 m²(商业)

【大堂】挑空9米大堂

【附赠】地下室层高5.2米,附赠屋顶私享花园

【价格】均价4.73-5.15w/m²,总价3689w起

【区位】项目位于大虹桥板块,西至沪亭南路,南至蒲汇路,北至蒲汇支路

【地铁】步行2-3分钟至九亭地铁站

【交通】18-20分钟车程至虹桥核心区,25分钟至徐家汇

【板块】地处九亭板块的核心位置,嘉闵、延安、沪闵高架半小时可覆盖上海部分大商圈及主要区域。



交通配套

【地铁】9号线

【商圈】九亭板块

楼盘简介

202359竣工时间

2023


所属商圈

九亭板块


地理位置

九亭板块
























价格
层高
700~2200㎡均价4.73-5.15w/m²暂无信息
得房率
产证年限
税费
暂无信息暂无信息暂无信息
停车费停车位
暂无信息暂无信息9号线
物业费
网络
入驻企业
暂无信息

暂无信息

暂无信息




中泰广场项目是由中国制造业企业500强泰豪公司与国内知名金融服务企业上海中汇金集团联合投资,泰豪产城集团全程开发管理,项目占地面积16000㎡,总建筑面积64687平米,是由2栋写字楼(200-1200㎡),6栋独栋商办(800-2200㎡),1座minimall商业组成的总部综合体。

服务顾问带看

服务顾问带看

近30天带看17次,总带看637次

租赁服务顾问·罗宇
成交396单,带看2461次,维护着46套房源
曾带领团队获得海都商业2021年年度“最佳门店”,个人荣获“最佳合伙人”等荣誉
2011年从事上海商业地产租售业务,海都商业买卖部总监
成交168单,带看1189次,维护着74套房源
买卖服务顾问·游祺
2017年获得“房地产经纪专业人员职业资格”证书
成交73单,带看856次,维护着23套房源
大宗交易服务顾问·邱文玲
房源需求提交

房源需求提交

一键提交需求,帮您匹配最合适的方案

您的需求
详情描述
姓名
*
手机号
*
立即提交
商务接待
企微接待客服