海都商业地产
房源详情

宜乐荟社区5516㎡独栋出售,上海普陀甘泉宜川核心,社区商业产权独栋出售,超大人流聚集地

位置 : 上海市
区域 : 普陀区
楼盘名称 : 宜乐荟社区
租售类型 : 出售
商业性质 : 大宗独栋
室内装修 : 简装
实际面积 : 5516㎡
 
租售类型 :
 
房源面积 :
159-2176-7138  房源咨询
房源详情

项目基本信息


  • 【产证建筑面积】:5516㎡

    【附赠面积】:340㎡阳光房+426㎡辅楼配套用房

    【价格】:面议

    【土地用途】:商业

    【层数】:3F

    【交易方式】:境内股权交易

    【土地年限】:2013年-2053年

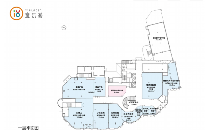
        项目位于普陀区宜川路、延长西路路口,属于甘泉宜川板块核心位置,项目周边汇聚大量成熟社区。


交通配套

【地铁】4号线中潭路站

【主干道】沪太路、内环高架

楼盘简介

202359竣工时间

2010年


所属商圈

沪太路


地理位置

宜川路299号
























售面单价
总价
5516㎡

暂无信息

面议
物业费层高
交付标准
暂无信息暂无信息暂无信息
停车费停车位
暂无信息暂无信息

4号线中潭路站

政策服务
地块入驻企业
暂无信息暂无信息

暂无信息




项目周边1KM范围内常住人口逾15万,辐射6所高校,一所三甲医院,消费者基数较大,旺盛的居民日常消费需求促使宜川路成为服务周边社区的        商业街,区域内居民流动性低,入住时间较久,多为自有住房无房贷,整体负债水平低,日常消费能力强劲。

服务顾问带看

服务顾问带看

近30天带看17次,总带看637次

租赁服务顾问·罗宇
成交396单,带看2461次,维护着46套房源
曾带领团队获得海都商业2021年年度“最佳门店”,个人荣获“最佳合伙人”等荣誉
2011年从事上海商业地产租售业务,海都商业买卖部总监
成交168单,带看1189次,维护着74套房源
买卖服务顾问·游祺
2017年获得“房地产经纪专业人员职业资格”证书
成交73单,带看856次,维护着23套房源
大宗交易服务顾问·邱文玲
房源需求提交

房源需求提交

一键提交需求,帮您匹配最合适的方案

您的需求
详情描述
姓名
*
手机号
*
立即提交
商务接待
企微接待客服