海都商业地产
房源详情

红豆数创园独栋出售,上海青浦数智化产业园区,C65稀缺地块,三河环绕滨水独栋总部

位置 : 上海市
区域 : 青浦区
楼盘名称 : 红豆数创园
租售类型 : 出售
商业性质 : 写字楼
室内装修 : 毛坯
楼盘地址 : 青浦区赵巷镇沪青平公路2700号
实际面积 : 2500㎡~4500㎡
租售价格 : 联系客服
 
租售类型 :
 
房源面积 :
159-2176-7138  房源咨询
房源详情

项目基本信息


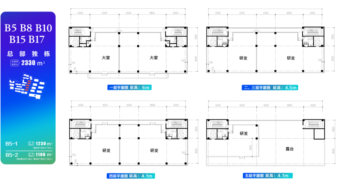
  • 【总面积】:约800~3200㎡

    【地块】:C65科研用地

    【层高】:首层6米,其他4.5米

    【绿化率】:30%+

    【附赠】:空中景观露台

项目位于青浦区市西软件园核心区域,东有张江,西有赵巷。周边名企北斗、网易、云砺信息、熙菱信息、长三角投促。

数智化产业园区,C65稀缺地块。绿化率30%+、三河环绕玉带环腰聚财风水、赠送无敌景观空中露台。


交通配套

【地铁】17号线嘉松中路站、G50沪渝高速、崧泽高架2公里

【主干道】张江、赵巷

楼盘简介

202359竣工时间

2025年


所属商圈

青浦


地理位置

沪青平公路2700号
























售面单价
总价
约800~3200㎡暂无信息暂无信息
物业费层高
交付标准
暂无信息首层6米,其他4.5米毛坯交付
停车费停车位
暂无信息暂无信息17号线嘉松中路站
政策服务
地块入驻企业
暂无信息C65科研用地

暂无信息




项目结合政府产业导向,以红豆集团相关产业资源优势,重点发展数字经济相关产业:信息技术,人工智能、大数据、云计算、工业互联、新材料        及5G通信等高新技术产业,同时也欢迎总部经济于科创服务企业入驻园区,共同打造绿色,科创,生态,智能产业园区。

服务顾问带看

服务顾问带看

近30天带看17次,总带看637次

租赁服务顾问·罗宇
成交396单,带看2461次,维护着46套房源
曾带领团队获得海都商业2021年年度“最佳门店”,个人荣获“最佳合伙人”等荣誉
2011年从事上海商业地产租售业务,海都商业买卖部总监
成交168单,带看1189次,维护着74套房源
买卖服务顾问·游祺
2017年获得“房地产经纪专业人员职业资格”证书
成交73单,带看856次,维护着23套房源
大宗交易服务顾问·邱文玲
房源需求提交

房源需求提交

一键提交需求,帮您匹配最合适的方案

您的需求
详情描述
姓名
*
手机号
*
立即提交
商务接待
企微接待客服