海都商业地产
房源详情

静安大宁板块商办综合体园区,创意园区办公室出租,研发办公、设计、摄影、直播、服装、游戏开发、总部企业办公

位置 : 上海市
楼盘名称 : 歆翱•万荣中心广场
租售类型 : 出租
商业性质 : 写字楼
室内装修 : 精装
楼盘地址 : 静安区永和路578号
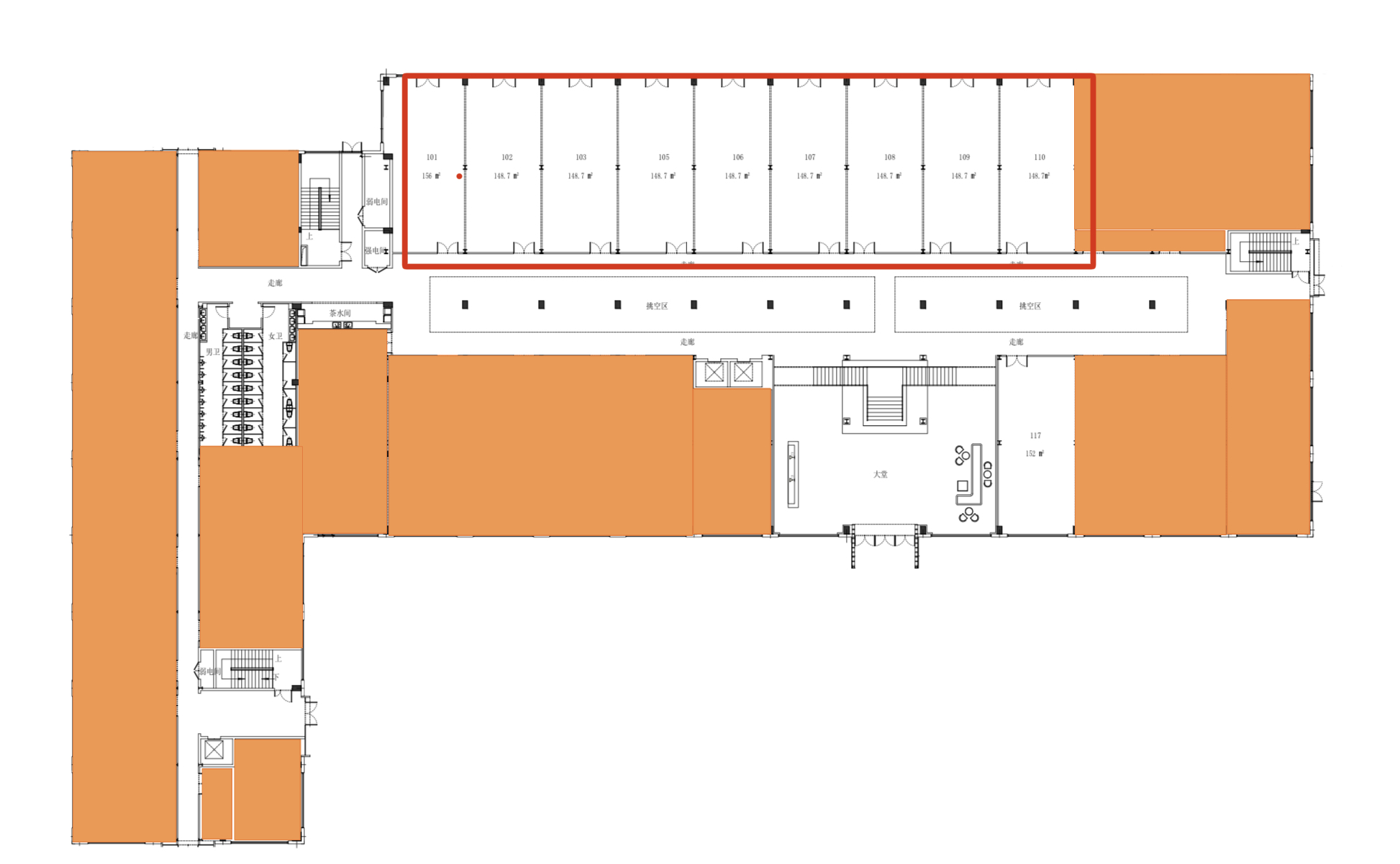
实际面积 : 84-1780㎡
 
租售类型 :
 
房源面积 :
159-2176-7138  房源咨询
房源详情

项目基本信息

【面积】84-1780平米
【租金】3.6元/㎡/天
【物业费】18元/㎡/月
【停车包月】600元/辆
【签约年限】两年起
【付款方式】付三押三
【立体车库】218个/车位

交通配套

上海火车站6公里、公交210线(高平路交城路→新闸路温州路)、地铁1号线(汶水路站)地铁7号线(行知路站)

楼盘简介

202359竣工时间

2022年


所属商圈

静安大宁


地理位置

静安区永和路578号
























租面日租金
层高
84-1780㎡3.6元/㎡/天暂无信息
付款方式
电梯
签约年限
付三押三暂无信息2年起
停车费停车位
600元
218个
1号线、7号线
物业费
网络
入驻企业
18元/㎡/月

电信、联通、网络

暂无信息




办公招商业态以研发办公、设计、摄影、直播、服装、游戏开发、总部企业办公等,全天候安保服务、咖啡厅、便利店、面馆、广式茶点等,上海火车站6公里、公交210线(高平路交城路→新闸路温州路)、地铁1号线(汶水路站)地铁7号线(行知路站),大宁中心宁汇广场、悦舜959创意生活广场、智汇广场、天格广场、静安大融城、大宁音乐广场、新普荟火星一号商业广场。

服务顾问带看

服务顾问带看

近30天带看17次,总带看637次

租赁服务顾问·罗宇
成交396单,带看2461次,维护着46套房源
曾带领团队获得海都商业2021年年度“最佳门店”,个人荣获“最佳合伙人”等荣誉
2011年从事上海商业地产租售业务,海都商业买卖部总监
成交168单,带看1189次,维护着74套房源
买卖服务顾问·游祺
2017年获得“房地产经纪专业人员职业资格”证书
成交73单,带看856次,维护着23套房源
大宗交易服务顾问·邱文玲
房源需求提交

房源需求提交

一键提交需求,帮您匹配最合适的方案

您的需求
详情描述
姓名
*
手机号
*
立即提交
商务接待
企微接待客服