徐汇西岸·芒果广场·出租·高端5A甲级办公,全新商业综合体,高端配套

发表时间:2024-07-03 13:14作者:至尚海都商办


徐汇西岸·芒果广场


  • 项目地址:龙爱路7号、27号

  • 竣工日期:2021年9月

  • 大楼总高:A栋25层,B栋15层

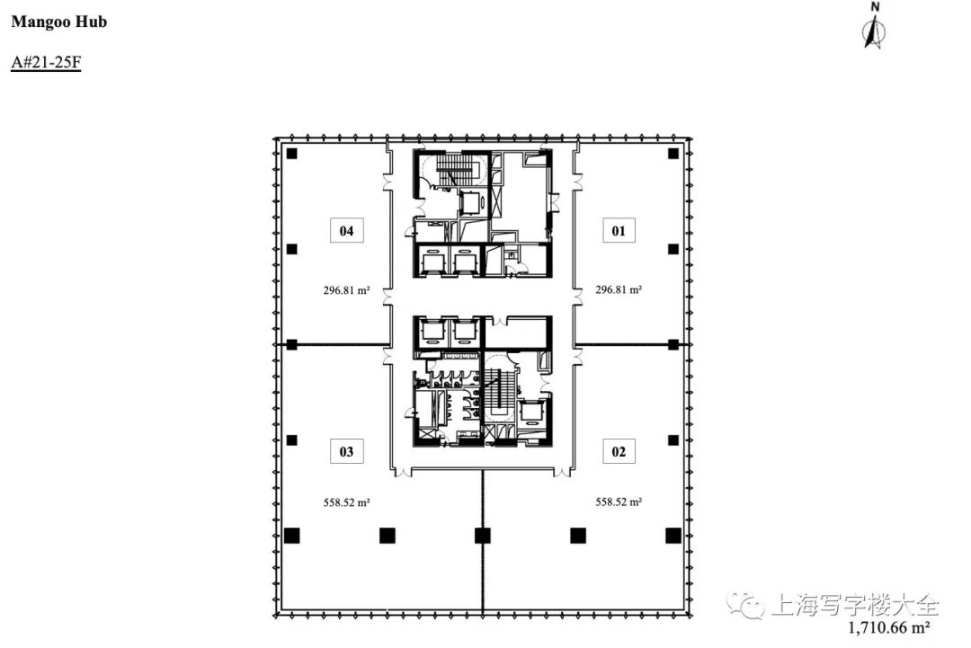
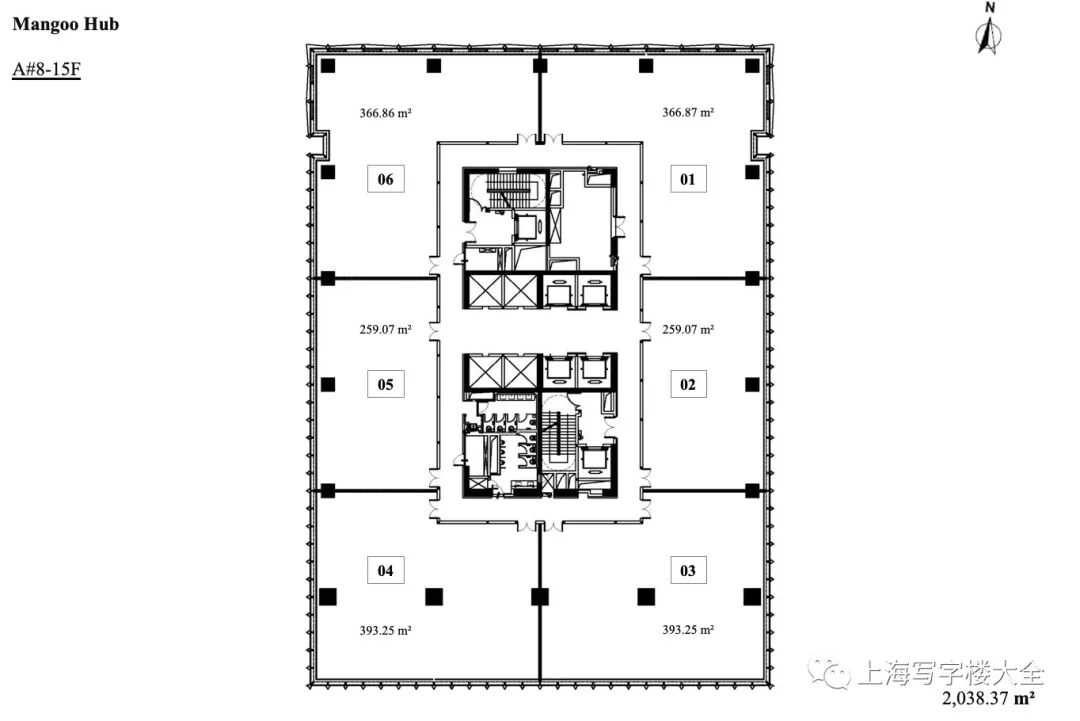
  • 标准层面积:1,700 m²、2,038 m²

  • 层高/净高:4.5米/3.0米

  • 物业管理费:办公38元/月/m²、商业54元/月/m²

  • 交付标准:集成金属铝板吊顶、玻璃门、架空地板、窗帘

  • 中央空调:周一~五 8:30-19:00,周六:8:30-13:00

  • 停车费用:非固定1300/月,固定1800/月