首页
Home
写字楼
Nav
公寓
Nav
商铺
Nav
大宗交易
Nav
关于海都
Nav
服务说明
留言板
上海集成电路设计产业园 | 浦东张江科学城核心,对标国际一流、 建设具有全球影响力的集成电路设计产业园区
发表时间:2023-10-14 11:57
作者:至尚海都商办
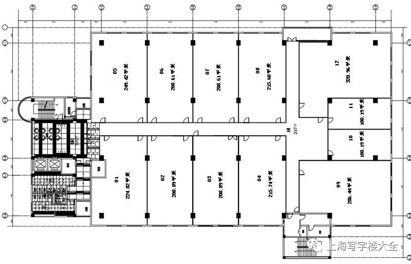
上海集成电路设计产业园
△外立面
上海集成电路设计产业园地处张江科学城核心区,规划面积3平方公里。东至外环绿地,南至高科中路,西至申江路,北至龙东大道。
一
项目优势
上一篇
滨江恒产·天幕官邸·穹顶社交·栖心平台,外滩金融地标资产,全球总裁天幕行宫
下一篇
信南都市产业园 丨虹口大柏树商圈,超高绿化园区,精装交付办公室
文章分类:
房源资讯
推荐文章
更多>>
委托租房
委托买房
投放房源
大宗交易