一、楼盘简介
5A智能化配置,全面贴合国际商务办公要求,匹配睿智过人的财富新锐企业。 正对著名的领事馆区,是真正的商务联合国。已有日本、澳大利亚、新加坡、韩国等总领事馆入驻,未来共有14领事馆入驻,全城瞩目的高尚地段,高起点俯瞰全球财富万象,共同筑就国际商务生活圈。立足虹桥金钻尊贵宝地,突破传统高档写字楼只租不售惯例,以稀有纯产权定位风云入市,助您成就21世纪新锐王国,真正享受完全自我的财富高地。
二、房源信息·
位置 |
古北路684号 | 区域 |
古北路 |
租售类型 | 出租 | 商业性质 | 写字楼 |
房源面积 |
400㎡ | 日租金 |
4元/㎡/日 |
装修 | 简装 | 楼盘名称 |
同诠大厦 |
层数 |
22层 | 层高 |
2.7m |
电梯 |
4部 | 车位 |
400个 |
物业费 |
20元/㎡/月 | 楼盘地址 |
古北路684号 |
实际面积 |
400㎡ | 租售价格 |
4元/㎡/日 |
·
三、配套设施
【轨交】 地铁15号线红宝石路716.42米,地铁10号线伊犁路796.51米,地铁2号线娄山关路805.75米
【餐饮】社会主义新农村(二部),风嘁爆烤场,巧媳妇小慨炒,新拙茶餐厅(仙霞店),晦逸海鲜酒家(古北店)
【生活】中国工商银行(虹桥开发区支行营业厅),温岭诺农村商业银行(城东支行),瑾华夏银行(唐山丰润支行),中国工商银行ATM(虹桥南丰城北区),中国工尚银行(上海市天山路支行),中国邮政别储蓄银行(萍乡市高坑镇营业所)
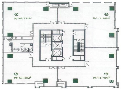
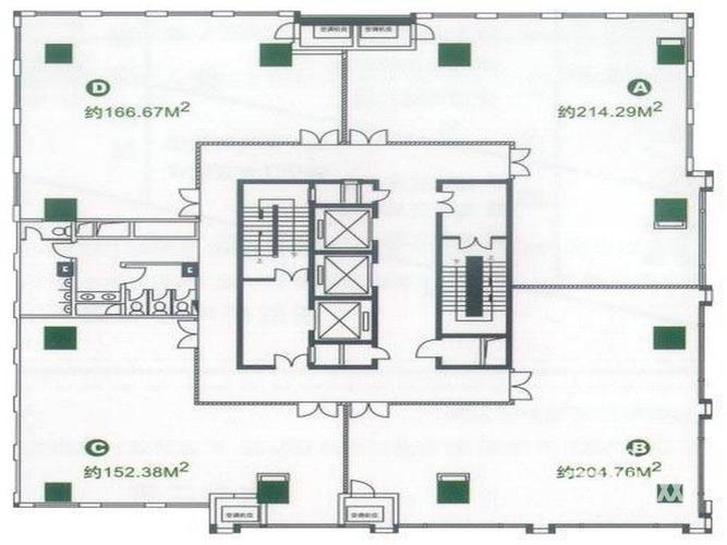
四、户型图

五、楼盘信息
竣工时间
2004年
所属商圈
古北路
地理位置
古北路684号
开发商 | 竣工时间 | 面积 |
上海同诠置业(上海)有限公司 |
2004年
|
400㎡ |
绿化率 | 轨交 | 物业名称 |
暂无信息 |
2、10号线 |
新中南方物业管理(上海)有限公司
|
空调 | 网络 | 入驻企业 |
中央空调 | 电信、联通、移动 |
暂无信息 |
·
©2024 Tencent - GS粤(2023)1171号地图数据