一、楼盘简介
舜元企业发展大厦位于江苏路和愚园路路口,坐拥2号线和11号线地铁。每层办公楼只分三个单元面积:445、363、316平米,大楼内部设施较齐全,架空地板、新风系统俱全,大厦在五楼设置多功能会议中心,总面积达1600平方米,舜元企业发展大厦位于上海市长宁区江苏路398号,近地铁2号线江苏路站及11号线地铁口,距离静安寺CBD商圈核心约10分钟车程,15分钟亦可到达虹桥机场,交通便利。
二、房源信息·
位置 |
江苏路398号 | 区域 |
江苏路 |
租售类型 | 出租出售 | 商业性质 | 写字楼 |
房源面积 |
445㎡ | 日租金 |
7.2-7.9元/㎡/日 |
装修 | 简装 | 楼盘名称 |
舜元企业发展大厦 |
层数 |
50层 | 层高 |
2.8m |
4电梯 |
6部 | 车位 |
230个 |
物业费 |
29元/㎡/月 | 楼盘地址 |
江苏路398号 |
实际面积 |
445㎡ | 租售价格 |
7.2-7.9元/㎡/日 |
·
三、配套设施
【购物】舜元弘基天地、协和城、百思买、上海巴黎春天长宁店、三联商厦、VERTU(久光百货店)
【生活】中信银行长宁支行、上海银行愚园路支行、邮政储蓄银行宣化路支行
【餐饮】来必堡(江苏路店)、金师傅馄饨(宣化路店)、紫燕百味鸡(宣化店)、阿明食品(江苏路店)、丰裕生煎(东诸安浜路店)、薡茶(江苏路店)、日丽餐饮有限公司
【轨交】距2号线江苏路站30米; 距11号线江苏路站30米
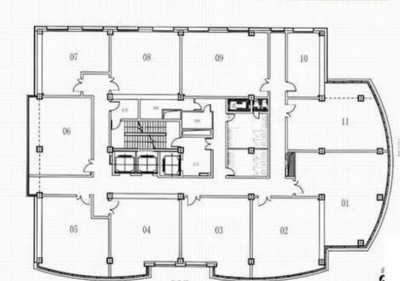
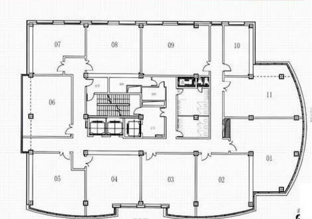
四、户型图

五、楼盘信息
竣工时间
2007年
所属商圈
江苏路
地理位置
江苏路398号
开发商 | 竣工时间 | 面积 |
上海舜元置地有限公司 |
2007年
|
445㎡ |
绿化率 | 轨交 | 物业名称 |
暂无信息 |
2、11号线 |
上海优联物业管理有限公司
|
空调 | 网络 | 入驻企业 |
中央空调 | 电信、联通、移动 |
上海松尾贸易有限公司 西班牙凯特莫比勒有限公司 |
·
©2024 Tencent - GS粤(2023)1171号地图数据