一、楼盘简介
sOHO中山广场地处虹桥涉外贸易中心核心区,由两栋5A国际甲级写字楼组成,该项目目前是上海单层面积最大的写字楼。交通十分便捷,临近轨交3、4和10号线。拥有出色的建筑设计外观和人性化的硬件品质,电梯配置相当周到,每层多达4部货梯与10部客梯,另有多达350余个车位的地下车库。建筑周边有丰富的周边配置,餐饮、酒店、银行、商业街一应俱全。区域内甲级写字楼、高端购物中心、展览中心、五星级酒店林立,大批世界著名的跨国公司均落户于此。在国家对于房地产市场的调控中,住宅所承受的投资属性正在不断地被剥离,而商业地产作为房地产市场和金融市场的中间键,开始真正展现其所固有的投资属性,SOHO中山广场可以帮助投资者共同分享中国经济高速增长所带来的社会财富。
二、房源信息·
位置 |
中山西路1065号 | 区域 |
中山公园 |
租售类型 | 出租出售 | 商业性质 | 写字楼 |
房源面积 |
188㎡ | 日租金 |
5.5-6.2元/㎡/日 |
装修 | 简装 | 楼盘名称 |
SOHO中山广场 |
层数 |
30层 | 层高 |
2.7m |
电梯 |
14部 | 车位 |
350个 |
物业费 |
28元/㎡/月 | 楼盘地址 |
中山西路1065号 |
实际面积 |
114244㎡ | 租售价格 |
5.5-6.2元/㎡/日 |
·三、配套设施
【轨交】距3号线虹桥路站200米; 距4号线虹桥路站200米; 距10号线虹桥路站200米
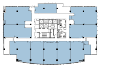
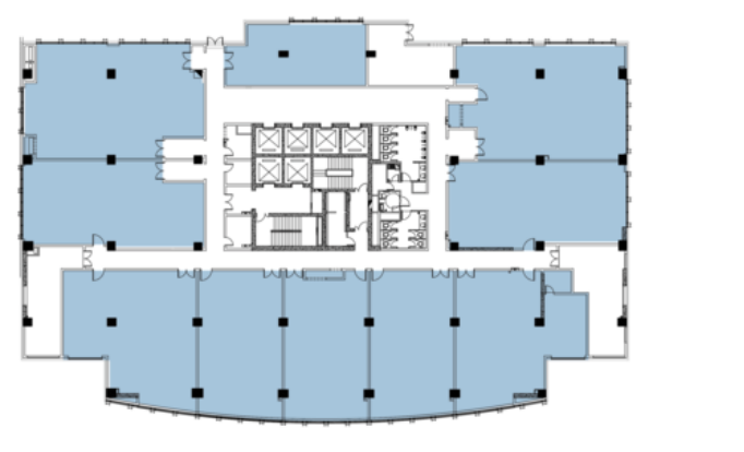
三、户型图

五、楼盘信息
竣工时间
2011年
所属商圈
中山公园
地理位置
中山西路1065号
开发商 | 竣工时间 | 面积 |
SOHO中国有限公司 |
2011年
|
114244㎡ |
绿化率 | 轨交 | 物业名称 |
暂无信息 |
3、4、10号线 |
北京锦融物业管理有限公司上海分公司
|
空调 | 网络 | 入驻企业 |
中央空调 | 电信、联通、移动 |
暂无信息 |
·
SOHO中山广场A座
上海市长宁区中山西路1055号
©2024 Tencent - GS粤(2023)1171号地图数据