一、楼盘简介
上海世贸商城坐落于上海虹桥经济开发区,由常年展贸中心、上海世贸展馆、上海世贸大厦三大主体建筑构成,是一个集展示、交易、办公、资讯于一体的超级交易市场,为国内外商家及专业买主提供国际级的设施和服务。
二、房源信息·
位置 |
延安西路2299号 | 区域 |
延安西路 |
租售类型 | 出租 | 商业性质 | 写字楼 |
房源面积 |
暂无信息 | 日租金 |
6.5元/㎡/日 |
装修 | 精装 | 楼盘名称 | 世贸大厦 |
层数 |
30层 | 层高 |
2.6米 |
电梯 |
暂无信息 | 车位 |
暂无信息 |
物业费 | 31元/㎡/月 | 楼盘地址 | 延安西路2299号
|
实际面积 | 暂无信息 | 租售价格 |
6.5元/㎡/日 |
·
三、配套设施
世茂大厦总建筑面积67047平方米,总层数27层,配设了Sense系列智能前台系统,能够通过AI技术构建更加高效便捷的智能前台服务;每间会议室都配有MAXHUB会议平板,可以同时接入4台设备,实现无线投屏、触摸书写、多页批注、云端会议等多项办公功能。
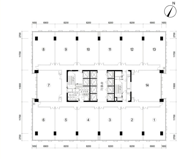
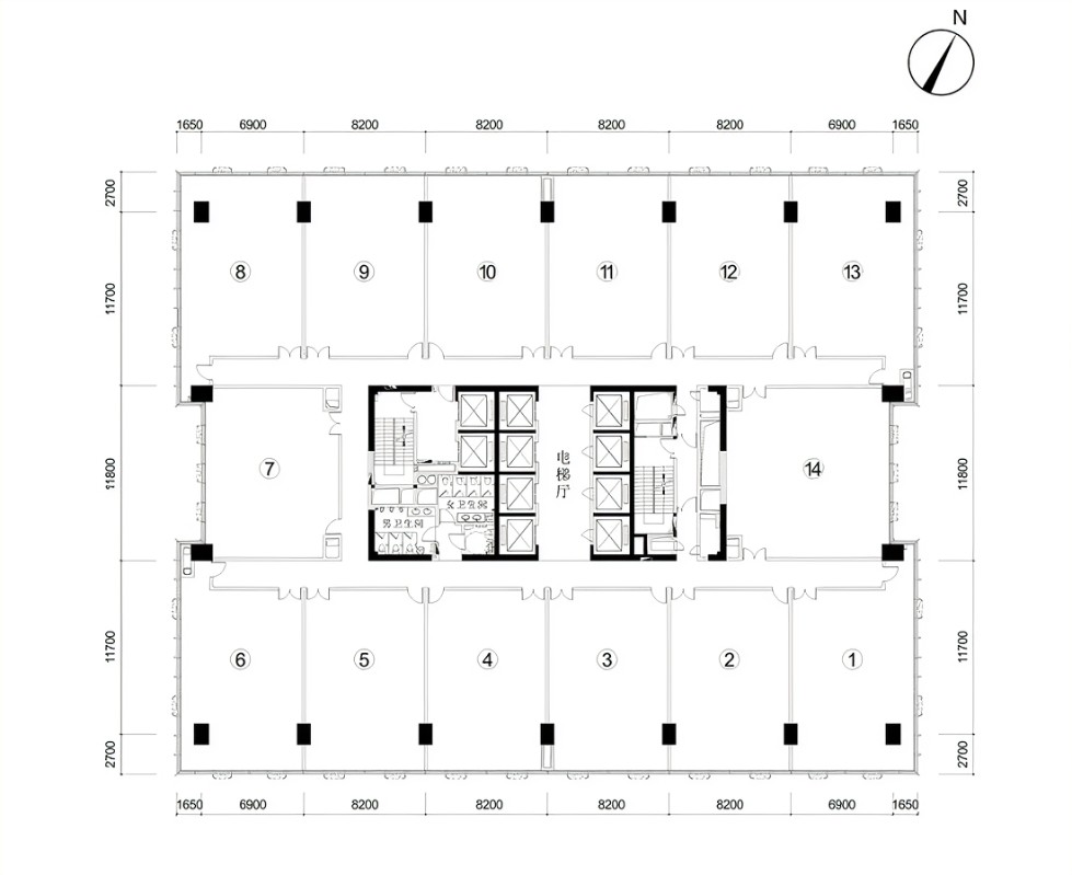
四、户型图

五、楼盘信息
竣工时间
2006年
所属商圈
延安西路
地理位置
延安西路2299号
开发商 | 竣工时间 | 面积 |
上海世贸商城有限公司 |
2006年
|
42000㎡ |
绿化率 | 轨交 | 物业名称 |
10% | 2号线 |
上海世贸商城有限公司
|
空调 | 网络 | 入驻企业 |
中央空调 | 电信、联通、移动 |
暂无信息 |
·
©2024 Tencent - GS粤(2023)1171号地图数据