一、楼盘简介
中期大厦是一个综合性的商办大楼,位于上海市普陀区中山北路,交通便利。大厦建筑面积四万余平方米,二十八层高,下有六层裙房,外形呈S形,美观大方。大厦的办公用房为大空间布局,可由业主根据需要自主分割,自主装潢。大厦有地面地下停车泊位一百余个。大厦内有银行、商场、餐厅及多功能展示厅
二、房源信息·
位置 |
中山北路 | 区域 |
中山北路2000号 |
租售类型 | 出租出售 | 商业性质 | 写字楼 |
房源面积 |
1200㎡ | 日租金 | 2.8元/㎡/天 |
装修 | 简装 | 楼盘名称 | 中期大厦 |
层数 | 28层 | 层高 | 3米 |
电梯 |
6部 | 车位 | 100个 |
物业费 | 6.2元/㎡/月 | 楼盘地址 |
中山北路2000号 |
实际面积 | 1200㎡ | 租售价格 | 2.8元/㎡/天 |
·
三、配套设施
【银行】
中国建设银行上海分行光新路支行交通银行,上海分行石泉路支行24小时自助银行服务,交通银行上海分行光新路支行
【购物】
西面有联合大厦、物贸中心大厦,东靠华源世界广场,普发广场
【轨交】
3号线,公交:陆安专线、北安跨线车、206路、69路、829路、216路、等众多公交路线
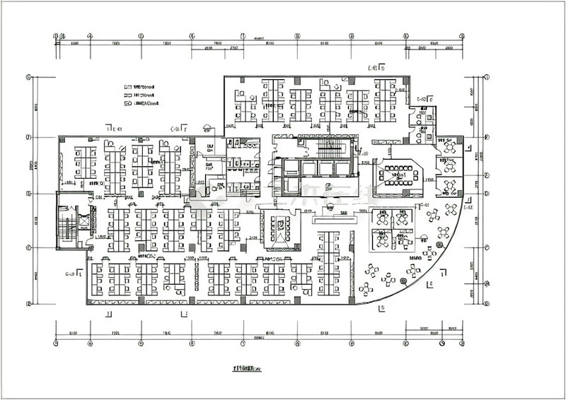
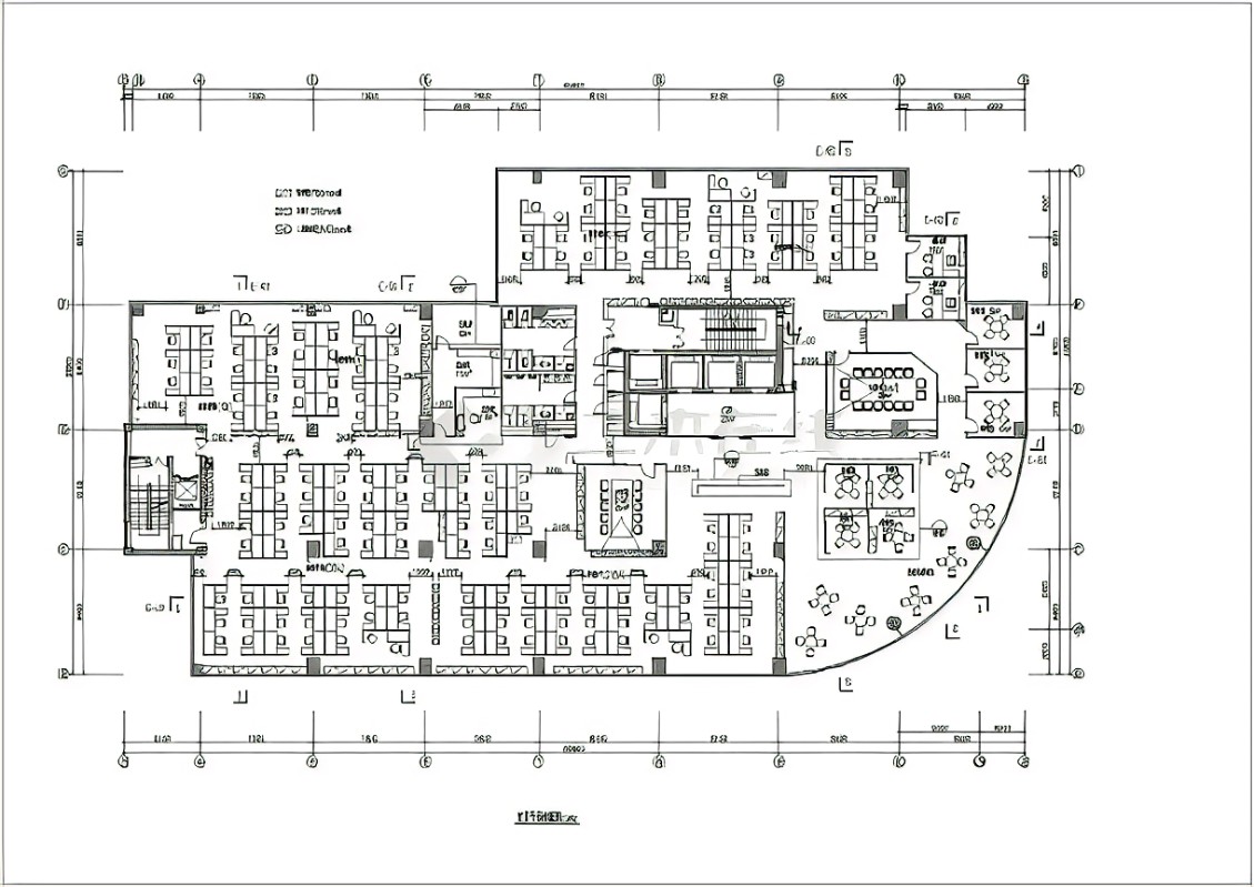
四、户型图

五、楼盘信息
竣工时间
2000年1月
所属商圈
中山北路
地理位置
中山北路2000号
开发商 | 竣工时间 | 面积 |
上海化工房地产开发经营公司物业公 |
2000年1月
|
40000㎡ |
绿化率 | 轨交 | 物业名称 |
暂无信息 |
3号线 |
八佰伴
|
空调 | 网络 | 入驻企业 |
中央空调 | 电信、联通、移动 |
暂无信息 |
·
©2024 Tencent - GS粤(2023)1171号地图数据