一、楼盘简介
越洋广场位于南京西路常德路口,属于南京西路商圈,是一个集写字楼、酒店和商铺的综合性楼盘。楼盘紧邻地铁二号线静安寺站与延安中路高架,交通便捷。附近的南京西路商业街,休闲会所和静安公园为楼盘营造了较好的商务办公环境。
二、房源信息·
位置 | 南京路1627号 | 区域 | 南京路 |
租售类型 | 出租 | 商业性质 | 写字楼 |
房源面积 |
2600㎡ | 日租金 | 14-15元/㎡/天 |
装修 | 精装 | 楼盘名称 | 越洋广场 |
层数 | 50层 | 层高 | 3m |
电梯 |
18部 | 车位 | 400个 |
物业费 | 38元/㎡/月 | 楼盘地址 | 南京路1647号 |
实际面积 | 2600㎡ | 租售价格 | 14-15元/㎡/天 |
三、配套设施
【学校】
华东模范中学
【轨交】
公交:40路,94路,76路,20路,45路,15
【娱乐】
静安公园
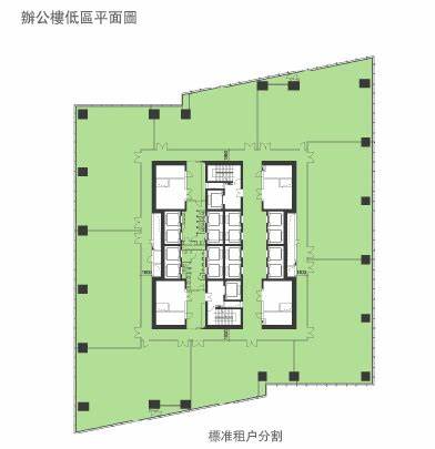
四、户型图

五、楼盘信息
竣工时间
2007年
所属商圈
南京路
地理位置
南京路1627号
开发商 | 竣工时间 | 面积 |
上海越洋房产开发有限公司 |
2007年 |
200000㎡ |
绿化率 | 轨交 | 物业名称 |
暂无信息 | 暂无信息 |
上海仲量联行物业管理有限公司
|
空调 | 网络 | 入驻企业 |
| 中央空调 | 电信、联通、移动 |
暂无信息 |
·
©2024 Tencent - GS粤(2023)1171号地图数据