一、楼盘简介
汇商大厦地处浦东民生路丁香路交界处,西靠上海科技馆,面临世纪公园,近9号线杨高中路站,地理位置优越、交通便利。汇商大厦楼体呈椭圆形,外立面由玻璃幕墙构成,光线充裕,打造商业办公超宽视角;房型布局合理,分割灵活,可满足企业个性化的布局要求。大楼内各类商务配套齐全,民生银行、罗森便利店入驻大厦1楼。目前租户多为政府非盈利机构。
二、房源信息·
位置 |
民生路1286号 | 区域 | 陆家嘴金融贸易区 |
租售类型 | 出租 | 商业性质 | 写字楼 |
房源面积 | 35000㎡ | 日租金 | 4.5-6.0元/㎡/天 |
装修 | 精装修 | 楼盘名称 | 汇商大厦 |
层数 | 19 层 | 层高 | 3.0m |
电梯 |
客梯3部,货梯1部 | 车位 | 150个 |
物业费 | 24元/㎡/月 | 楼盘地址 | 民生路1286号 |
实际面积 | 1000㎡ | 租售价格 | 4.5-6.0元/㎡/天 |
·
三、配套设施
【学校】竹园中学、洋泾中学校、胡姬港湾幼儿园、进才中学
【购物】世纪联华大商场、96广场、华润时代广场、第一八佰伴
【医院】上海东方医院、上海长航医院、上海市人民医院
【生活】建设银行、交通银行、中国银行、农业银行
【轨交】9号线
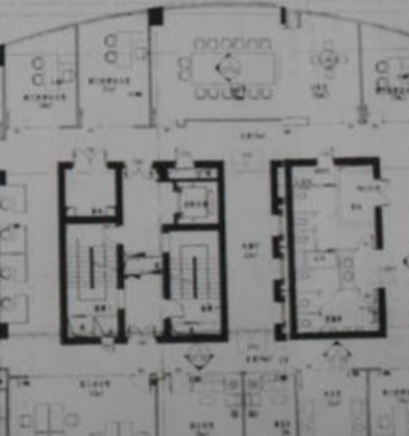
四、户型图

五、楼盘信息
竣工时间
2004年11月
所属商圈
陆家嘴金融贸易区
地理位置
民生路1286号
开发商 | 竣工时间 | 面积 |
上海昕商汇房地产开发有限公司 |
2004年11月 |
24145m² |
绿化率 | 轨交 | 物业名称 |
30% | 9号线 |
上海昕商汇房地产开发有限公司
|
空调 | 网络 | 入驻企业 |
| 中央空调 | 电信、联通、移动 | 暂无信息 |
©2024 Tencent - GS粤(2023)1171号地图数据