一、楼盘简介
福兴大厦位于上海市张杨路655号。 福兴大厦位于张杨路、崂山西路。福兴大厦是集商场、写字楼、住宅天台、花园、篮球场、健身房于一体的商务楼。福兴大厦外墙铺设马赛克,户门采用名贵防火实心门,厅、房及厨、厕选用高级铝质推拉窗框,配水绿色玻璃。
二、房源信息·
位置 |
张杨路655号 | 区域 | 陆家嘴金融贸易区 |
租售类型 | 出租出售 | 商业性质 | 写字楼 |
房源面积 | 24000㎡ | 日租金 | 4.1-5.1元/㎡/天 |
装修 | 精装修 | 楼盘名称 | 福兴大厦 |
层数 | 16层 | 层高 | 3.0m |
电梯 |
4部 | 车位 | 50个 |
物业费 | 45元/㎡/月 | 楼盘地址 | 张杨路655号 |
实际面积 | 1800㎡ | 租售价格 | 4.1-5.1元/㎡/天 |
·
三、配套设施
【学校】明珠小学、东昌中心华东师大附属学院、洋泾中学
【购物】八百伴、华联、时代广场、96广场
【医院】上海东方医院、上海长航医院、上海市人民医院
【生活】建设银行、交通银行、中国银行、农业银行
【轨交】2,4,9号线
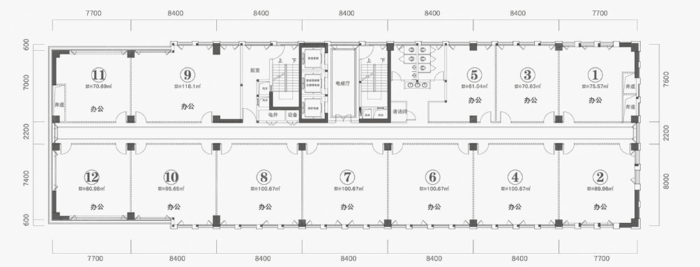
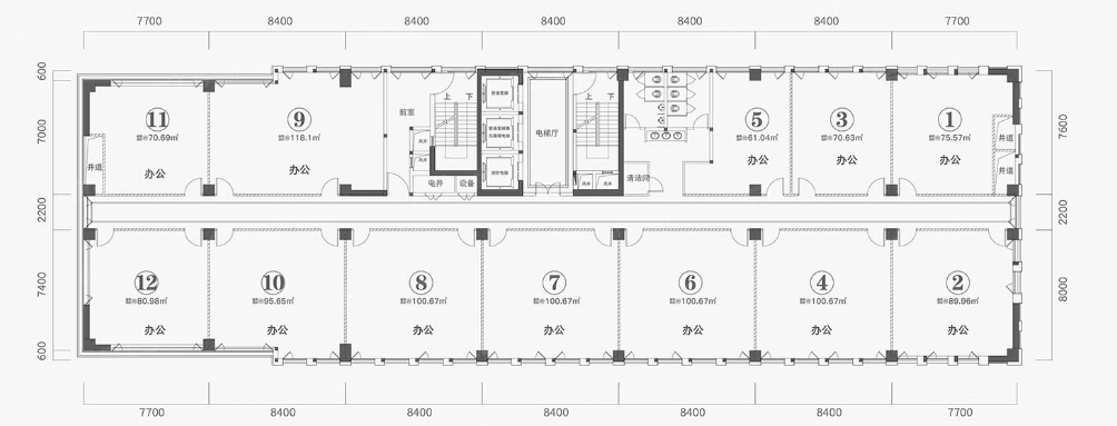
四、户型图

五、楼盘信息
竣工时间
1996年8月
所属商圈
陆家嘴金融贸易区
地理位置
张杨路655号
开发商 | 竣工时间 | 面积 |
上海服饰中心 |
1996年8月 |
24000m² |
绿化率 | 轨交 | 物业名称 |
30% | 9号线 |
上海百联物业管理有限公司
|
空调 | 网络 | 入驻企业 |
| 中央空调 | 电信、联通、移动 | 暂无信息 |
·
©2024 Tencent - GS粤(2023)1171号地图数据