一、楼盘简介
城建国际中心所处的竹园商贸区,位于陆家嘴商务区世纪大道中段两侧,紧邻张杨路、东方路、是集大型商业、文化、娱乐、休闲及办公功能于一体的大规模综合性商业区。区内所处区域紧邻世纪公园、东方艺术中心以及上海科技馆等文化娱乐中心,尽揽竹园超大绿地,充分诠释人、科技、自然的完美统一。瞬间即达迄今上海城区规划中唯一的2、4、6号线轨道交通换乘枢纽站,驰骋世纪大道、张杨路等多条主干道,交通无比畅达。
二、房源信息·
位置 |
福山路500号 | 区域 | 陆家嘴金融贸易区 |
租售类型 | 出租 | 商业性质 | 写字楼 |
房源面积 | 60000㎡ | 日租金 | 7.5元/㎡/天 |
装修 | 精装修 | 楼盘名称 | 城建国际中心 |
层数 | 29层 | 层高 | 2.7m |
电梯 | 客梯8部 | 车位 | 280个 |
物业费 | 32元/㎡/月 | 楼盘地址 | 福山路500号 |
实际面积 | 1900㎡ | 租售价格 | 7.5元/㎡/天 |
·
三、配套设施
【学校】明珠小学、东昌中心华东师大附属学院、洋泾中学
【购物】八百伴、华联、时代广场、96广场
【医院】上海东方医院、上海长航医院、上海市人民医院
【生活】建设银行、交通银行、中国银行、农业银行
【轨交】2,4,9号线
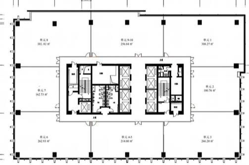
四、户型图

五、楼盘信息
竣工时间
2005年12月
所属商圈
陆家嘴金融贸易区
地理位置
福山路500号
开发商 | 竣工时间 | 面积 |
上海利德房地产发展有限公司 | 2007年6月 | 60000㎡ |
绿化率 | 轨交 | 物业名称 |
30% | 4,6号线 |
戴德梁行 |
空调 | 网络 | 入驻企业 |
| 中央空调 | 电信、联通、移动 | 暂无信息 |
·
©2024 Tencent - GS粤(2023)1171号地图数据