一、楼盘简介
上海证券大厦建筑面积约10万平方米,是一座集高档写字楼、证券交易、高级国际俱乐部等设施于一体的5A智能化大厦。上海证券大厦是一座集建筑美学与现代科学为一体的智能型建筑,大厦由加拿大WZMH建筑设计事务所设计,采用敞开式巨门的造型,在西端建筑之间凌空横跨63米大型天桥。上海证券大厦立面外罩银白色铝合金板的米字型网,显露出全钢结构的稳重与坚固,整个建筑极富时代感。上海证券大厦于1997年12月19日正式启用。上海证券大厦总建筑面积10万平方米,主要功能是交易、办公。大厦共27层,九层以下为上海证券交易所新址,3600平方米的无柱交易大厅,可提供1810个交易席位,能满足3000多位交易员同时交易,堪称亚洲之最!上海证券大厦由保利集团经营管理。
二、房源信息·
位置 |
浦东南路528号 | 区域 | 陆家嘴金融贸易区 |
租售类型 | 出租 | 商业性质 | 写字楼 |
房源面积 | 104000㎡ | 日租金 | 5-7元/㎡/天 |
装修 | 精装修 | 楼盘名称 | 上海证券大厦 |
层数 | 27层 | 层高 | 2.7米 |
电梯 | 客梯10部,货梯1部 | 车位 | 200个 |
物业费 | 29.5元/㎡/月 | 楼盘地址 |
浦东南路528号 |
实际面积 | 1346㎡ | 租售价格 | 5-7元/㎡/天 |
·
三、配套设施
【学校】栖霞小学、浦南中学、昌邑中学
【购物】正大广场、易初莲花
【医院】上海东方医院、上海长航医院、上海市人民医院
【餐饮】悦泰(金茂大厦店)、心上餐厅、眉州东坡酒楼
【轨交】地铁2号线、538路、799路、939路公交车
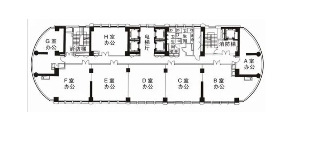
四、户型图

五、楼盘信息
竣工时间
1997年
所属商圈
陆家嘴
地理位置
浦东南路528号
开发商 | 竣工时间 | 面积 |
浦利房地产发展有限公司 | 1997年 |
104000㎡ |
绿化率 | 轨交 | 物业名称 |
| 30% | 2号线 |
上海保利物业酒店管理集团有限公司 |
空调 | 网络 | 入驻企业 |
| 中央空调 | 电信、联通、移动 | 暂无信息 |
·
©2024 Tencent - GS粤(2023)1171号地图数据