海都商业地产
房源详情

上海市浦东区波特营创意园出租,波特营文创园区A2幢独栋(国资物业,可商可办)

位置 : 上海市
区域 : 浦东区
楼盘名称 : 波特营创意园
租售类型 : 出租
商业性质 : 写字楼
室内装修 : 精装
楼盘地址 : 商城路889号
实际面积 : 495㎡
 
租售类型 :
 
房源面积 :
159-2176-7138  房源咨询
房源详情

项目基本信息

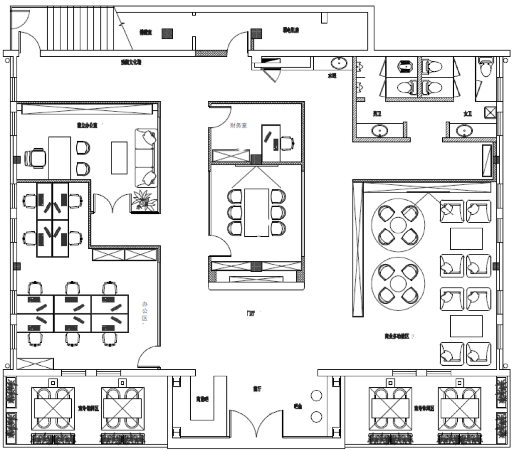
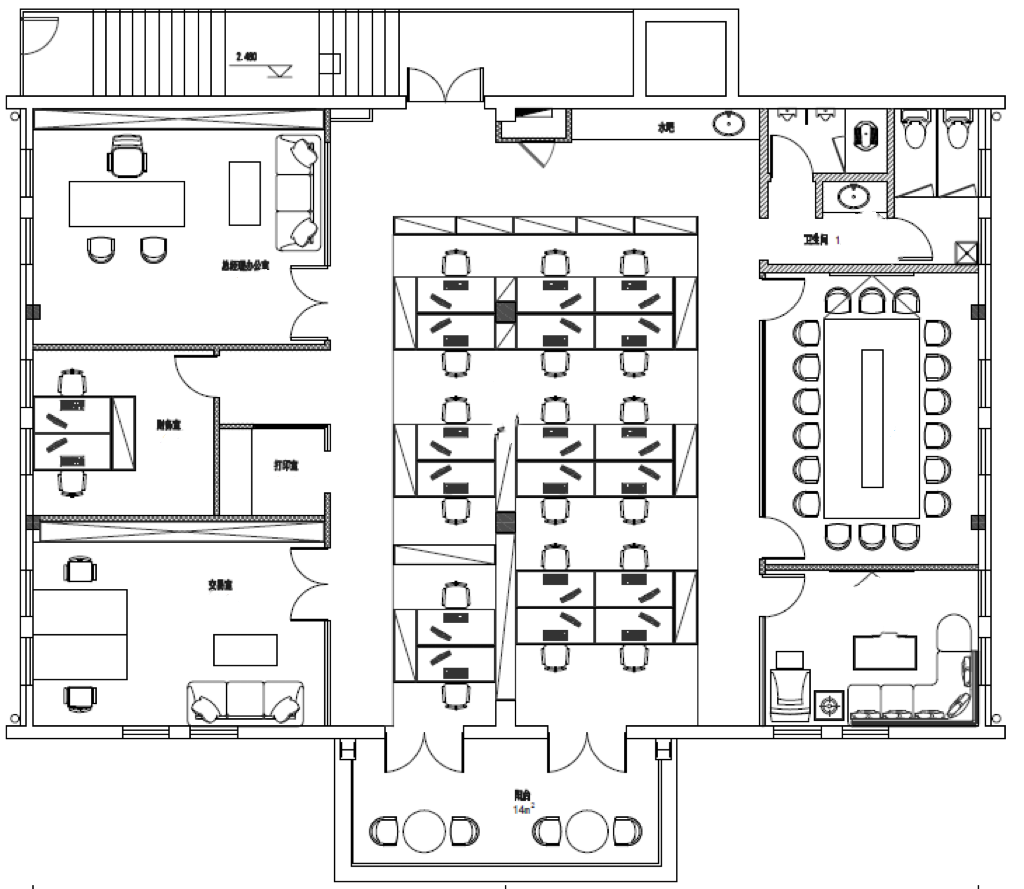
   波特营文创园区A2幢独栋(国资物业,可商可办)

【地址】浦东新区商城路889号

【交通】9号线商城路站,2号线东昌路站,2、4、6、9号线世纪大道站

【计租面积】495平米

【特点】独栋二层,精装修,中心花园区域,有外摆,有阳台,带独立卫生间

【得房率】90%以上


交通配套

【地铁】2、4、6、9号线
【主干道】商城路

【商圈商场】浦东新区商城路889号


楼盘简介

202359竣工时间

2000年


所属商圈

浦东新区


地理位置

商城路889号
























价格
层高
495㎡暂无信息暂无信息
得房率
电梯
产权性质
90%以上暂无信息暂无信息
停车费停车位
暂无信息暂无信息2、4、6、9号线
物业费
网络
入驻企业
暂无信息

暂无信息

暂无信息





浦东新区位于上海市东部,因处黄浦江东而得名。东濒东海,南临杭州湾,西隔黄浦江与宝山、杨浦、虹口、黄浦、徐汇区相邻,并与闵行奉贤2区接壤。区内海岸线长105.93千米,黄浦江岸线长43.5千米。区人民政府驻花木街道世纪大道2001号。

服务顾问带看

服务顾问带看

近30天带看17次,总带看637次

租赁服务顾问·罗宇
成交396单,带看2461次,维护着46套房源
曾带领团队获得海都商业2021年年度“最佳门店”,个人荣获“最佳合伙人”等荣誉
2011年从事上海商业地产租售业务,海都商业买卖部总监
成交168单,带看1189次,维护着74套房源
买卖服务顾问·游祺
2017年获得“房地产经纪专业人员职业资格”证书
成交73单,带看856次,维护着23套房源
大宗交易服务顾问·邱文玲
房源需求提交

房源需求提交

一键提交需求,帮您匹配最合适的方案

您的需求
详情描述
姓名
*
手机号
*
立即提交
商务接待
企微接待客服