海都商业地产
房源详情

上海市闵行区莘庄中心独栋出售,春申湖畔,仅一个小目标的商办独栋,尽享生态景观办公氛围

位置 : 上海市
区域 : 闵行区
楼盘名称 : 莘庄中心
租售类型 : 出售
商业性质 : 写字楼
室内装修 : 简装
楼盘地址 : 莘庄商务生态区
实际面积 : 2363㎡
租售价格 : 4.9万/㎡
 
租售类型 :
 
房源面积 :
159-2176-7138  房源咨询
房源详情

项目基本信息


  • 【面积】:2363㎡

  • 【单价】:4.9万/㎡

  • 【总价】:约1.16亿元起

  • 【交易方式】:二手产权交易

  • 【物业费】:13.8元/㎡/月

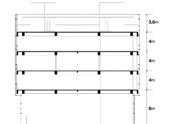
  • 【层高】:大堂8米,标准层4米

  • 【赠送】:屋顶花园、楼宇冠名权

      项目位于上海城市副中心莘庄商务生态区,春申湖畔,是旭辉集团倾心打造的生态高品质办公楼,坐一湖两河,商务正中心位置,春申湖的清        爽空气,沁人心脾。大虹桥辐射区的高端商务启航之地,为入驻企业亮出名片。



交通配套

【地铁】12号线七莘路站、1号线莘庄站

【主干道】沪昆高速、虹桥枢纽

楼盘简介

202359竣工时间

2010年


所属商圈

中环路


地理位置

七莘路秀文路园秀路路口
























售面单价
总价
2363㎡

4.9万/㎡

约1.16亿元起
物业费层高
交付标准
13.8元/㎡/月大堂8米,标准层4米暂无信息
停车费停车位
暂无信息暂无信息

12号线七莘路站、1号线莘庄站

政策服务
地块入驻企业
暂无信息暂无信息

暂无信息

       




莘庄中心自身拥有约5000方精品商业,坐享全方位商务便利,让业余生活精彩纷呈,商务办公与优质生活完美结合。国际高品质生态写字楼与总          部企业为邻,项目自持规划运营,长期提供有效管理机制,提升项目品质依托成熟商务气氛与一体化高端配套缔造企业理想的办公平台。

服务顾问带看

服务顾问带看

近30天带看17次,总带看637次

租赁服务顾问·罗宇
成交396单,带看2461次,维护着46套房源
曾带领团队获得海都商业2021年年度“最佳门店”,个人荣获“最佳合伙人”等荣誉
2011年从事上海商业地产租售业务,海都商业买卖部总监
成交168单,带看1189次,维护着74套房源
买卖服务顾问·游祺
2017年获得“房地产经纪专业人员职业资格”证书
成交73单,带看856次,维护着23套房源
大宗交易服务顾问·邱文玲
房源需求提交

房源需求提交

一键提交需求,帮您匹配最合适的方案

您的需求
详情描述
姓名
*
手机号
*
立即提交
商务接待
企微接待客服