黄浦区外滩金融商业中心丨1700m²整层出租,眺看陆家嘴江景

发表时间:2023-02-07 17:34作者:至尚海都商办

华设大厦



项目基本信息

  • 【面积】1700m²(得房率80%)

  • 【价格】9元/m²/天

  • 【付款方式】付一押三

  • 【物业费】34.98元/m²/月

  • 【装修】精装修,遗留装修,毛坯


交通配套

  • 【地铁】地铁1号、地铁2号线,人民广场站、南京东路站,14号线大世界站

  • 【路线】 紧邻延安高架、延安东路隧道、人民路隧道。

  • 【商圈配套】人民广场商圈,餐厅、银行、商场、商务中心,有会议中心、休闲、健身、娱乐

房源优势

  • 坐落于外滩金融商业中心地带
  • 俯瞰闻名于世的外滩
  • 金融、教育、文化与政府机构林立于黄浦江沿岸

项目实景图


【项目外立面】

【大堂】

8部高速客梯-高低分区

看陆家嘴江景


前台

01-05单元布置图(看江景)





单元布置图(看江景)









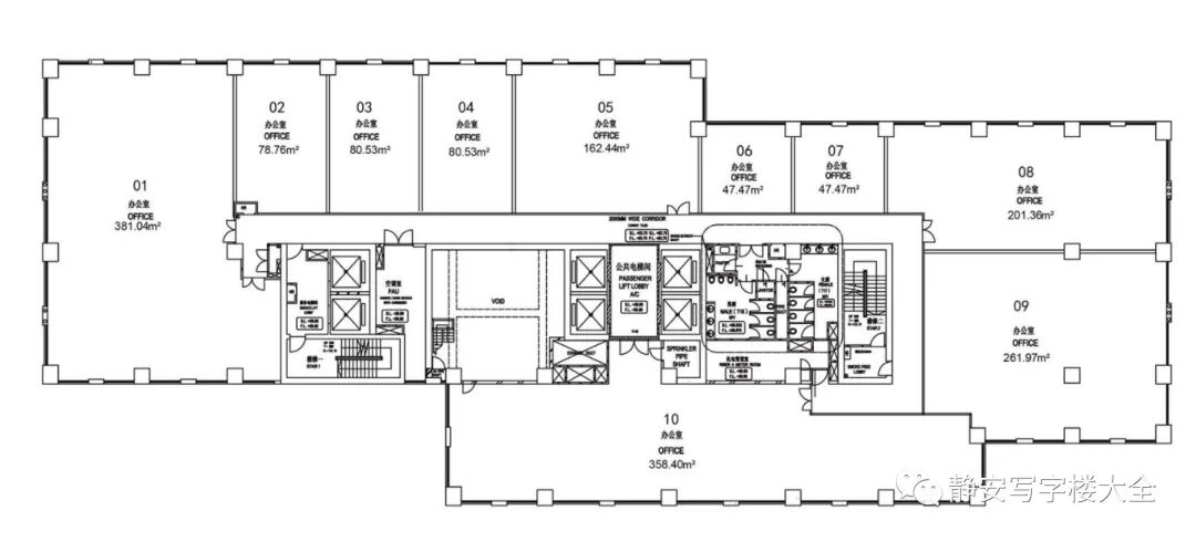
平面图
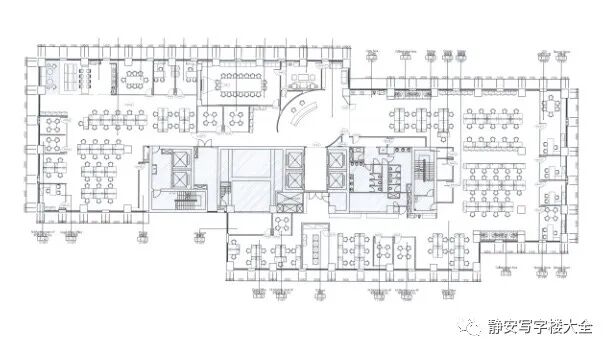
目前整层布局图:1个总裁室、6个经理室,1个20人会议室、7个小会议室,1个接待室、2个茶歇区、2个储藏室,1个机房、120人工位。