首页
Home
写字楼
Nav
公寓
Nav
商铺
Nav
大宗交易
Nav
关于海都
Nav
服务说明
留言板
九亭板块丨稀缺商业独栋出售丨企业总部不二之选
发表时间:2023-02-07 17:23
作者:至尚海都商办
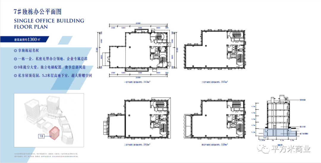
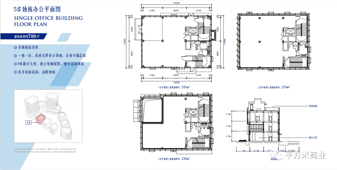
项目基本信息
【面积】
788m²
丨
1726m²
丨
1360m²
丨
2256 m²(
商业
)
【大堂】挑空
9米
大堂
【附赠】地下室层高5.2米,附赠屋顶私享花园
【价格】均价
4.73-5.15w/m²
,总价
3689w
起
交通区位
【区位】项目位于大虹桥板块,西至沪亭南路,南至蒲汇路,北至蒲汇支路
【地铁】步行
2-3分钟至
九亭地铁站
【交通】18-20分钟车程至虹桥核心区,25分钟至徐家汇
【板块】地处九亭板块的核心位置,嘉闵、延安、沪闵高架半小时可覆盖上海部分大商圈及主要区域
项目图片
平面图
上一篇
静安大宁丨欧式独栋出售丨2000㎡出售丨通燃气丨可冠名
下一篇
宝山区稀缺湖景独栋办公丨550㎡-830㎡
文章分类:
房源资讯
推荐文章
更多>>
委托租房
委托买房
投放房源
大宗交易