首页
Home
写字楼
Nav
公寓
Nav
商铺
Nav
大宗交易
Nav
关于海都
Nav
服务说明
留言板
红豆数创园丨青浦数智化产业园区,C65稀缺地块,三河环绕滨水独栋总部
发表时间:2023-10-16 10:00
作者:至尚海都商办
1
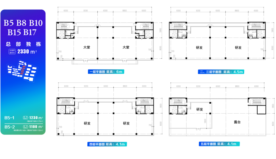
红豆数创园
项目位于青浦区,结合政府产业导向,以红豆集团相关产业资源优势,重点发展数字经济相关产业:信息技术,人工智能、大数据、云计算、工业互联、新材料及5G通信等高新技术产业,同时也欢迎总部经济于科创服务企业入驻园区,共同打造绿色,科创,生态,智能产业园区。
2
项目基本信息
总面积:约800~3200㎡
地块:C65科研用地
层高:首层6米,其他4.5米
绿化率:30%+
附赠:空中景观露台
上一篇
中建企业天地丨虹桥核心,国家会展旁,央企项目,整层办公出租
下一篇
E通世界商务园丨青浦区,上海西郊经济开发区,5A甲级写字楼、地铁17号线蟠龙路地铁站
文章分类:
房源资讯
推荐文章
更多>>
委托租房
委托买房
投放房源
大宗交易